Wing of Change
Entwerfen Bim Spa | 2024
Im Rahmen des VDI-Wettbewerbs Integrale Planung 2024/2025 stand die Sanierung und Umnutzung des stark renovierungsbedürftigen, denkmalgeschützten Logishauses und Badehauses in Alexisbad im Mittelpunkt. Der Entwurf sieht die Umnutzung des Logishauses zu einem Hotel mit Innovation Hub sowie die Neugestaltung des Badehauses als Veranstaltungshalle vor. Zentrales Element ist eine neu entworfene Lobby, die zwischen dem Fachwerksbau des Logishauses und dem DDR-Plattenbau des Morada Hotels entsteht und als moderne Zeitschicht die Epochen verbindet.
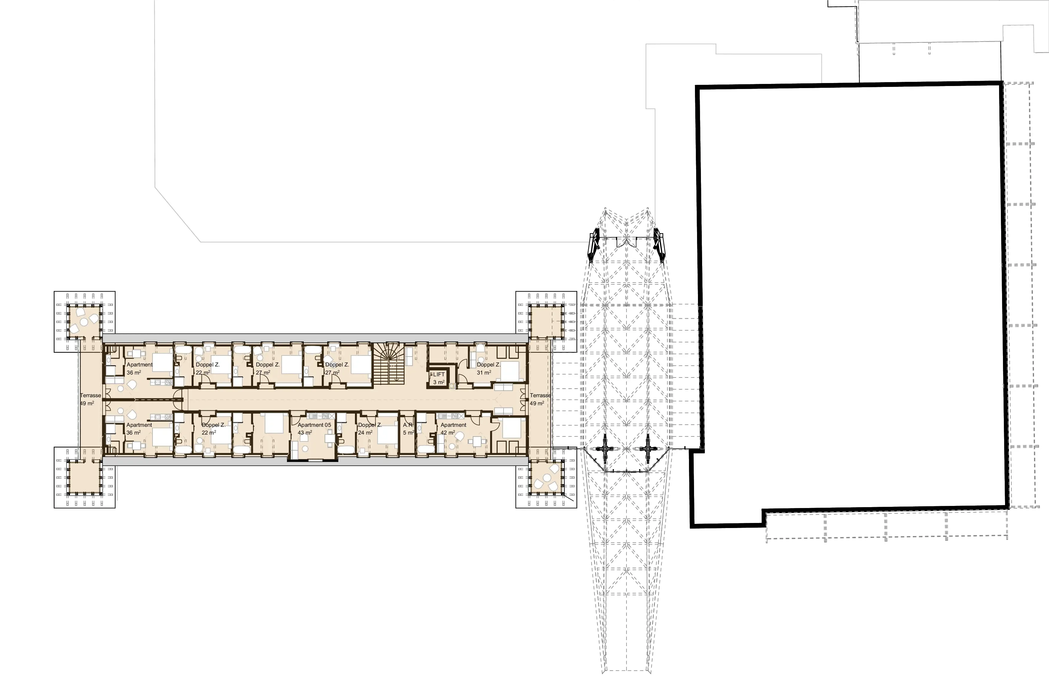
Logishaus
Das Logishaus bildet mit der neuen Lobby das Herzstück des Moradahotels Alexisbad. Das markante Flugdach weist den Eingang und schafft einen einladenden Ort des Ankommens. Im Inneren ergänzen moderne Seminarräume und das „Wohnzimmer“ als Frühstückssaal die Nutzung. In den oberen Geschossen erweitern neue Hotelzimmer das Angebot und verbinden Inspiration, Erholung und Arbeit.
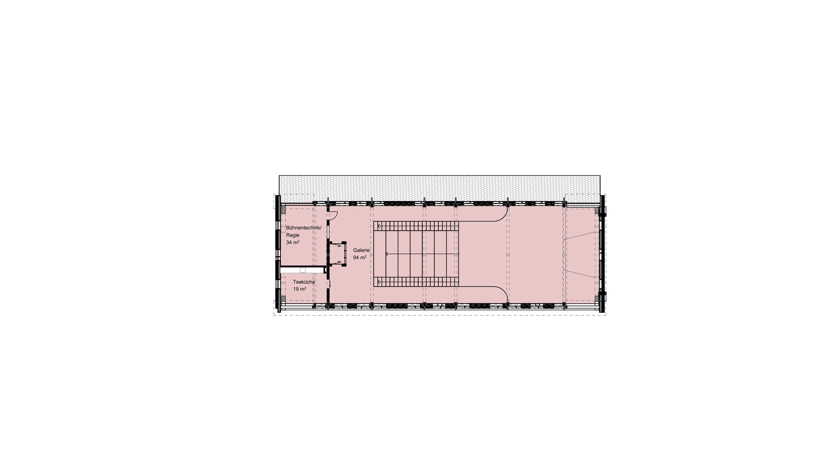
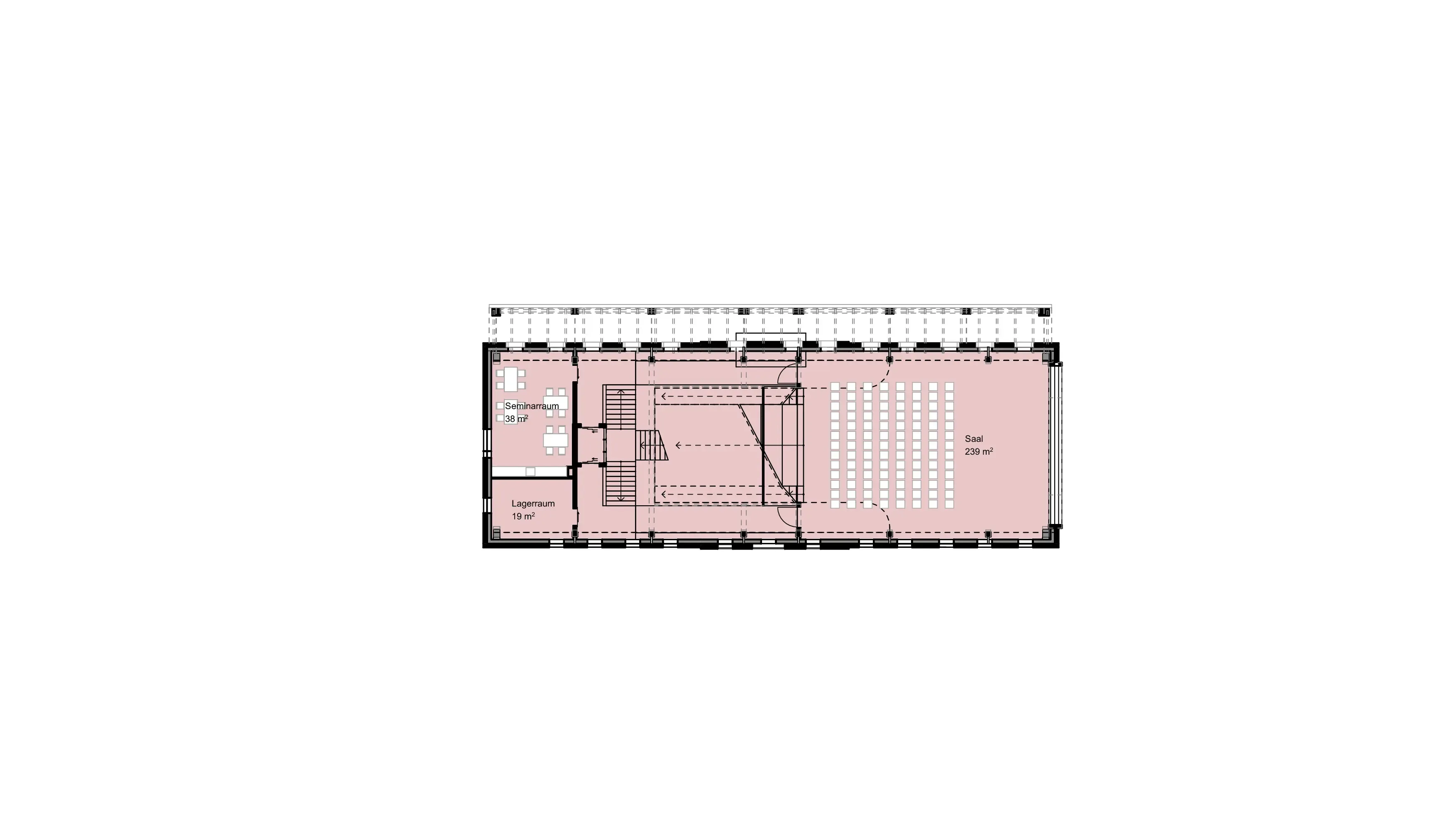
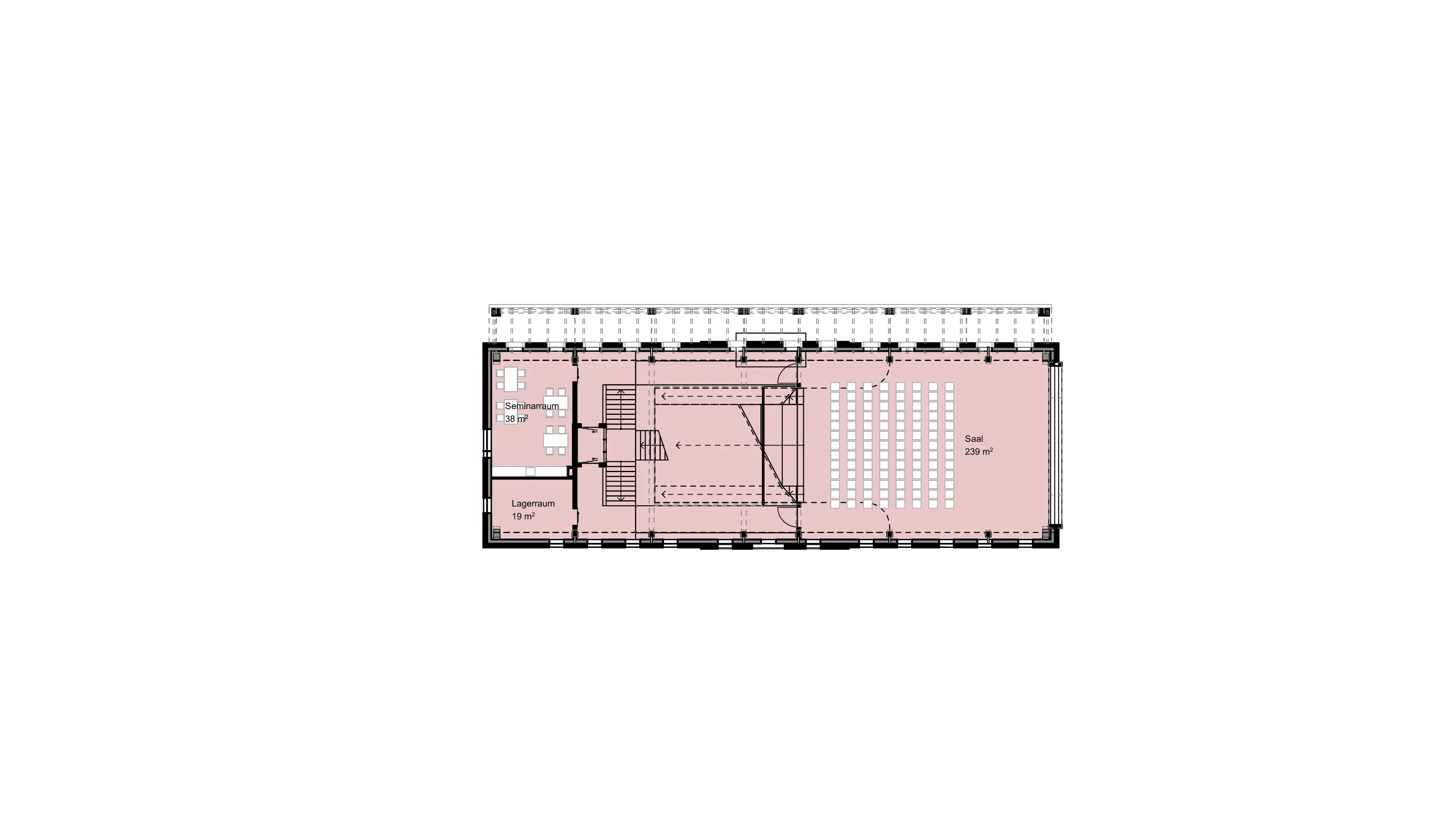
Badehaus
Das historische Badehaus wird vollständig entkernt und mit einer neuen Stahlkonstruktion ausgesteift. So ensteht ein großer, stützenfreier Veranstaltungsraum, der vielfältige Nutzungen ermöglicht. Die neu gewonnene Großzügigkeit der Räume und Säle ist spürbar und macht das Badehaus zu einem besonderen Ort für Veranstaltungen, Begegnungen und kreative Formate.
Gebäudetechnik
Die Temperierung erfolgt über thermisch aktivierte Bohrpfähle, Tiefenbohrungen und den alten Bergstollen, die ihre Energie in eine Ringleitung einspeisen. Wärmepumpen nutzen diese ganzjährig für Heizung und Kühlung, verteilt über Flächenheizungen in Wänden, Decken und Böden. Photovoltaik auf den Dachflächen versorgt Gebäudetechnik und E-Ladestationen, ein Energiespeicher sichert die kontinuierliche Versorgung.
Projektdetails
- Entwerfen
- Master Entwerfen - Bim Spa
- Betreuer
- Iva Kovacic Philipp Stauß Robin Jakoubek Dalel Daleyev Lars Oberwinter Lisi Wieser
- Ort
- Alexisbad im Harz, Deutschland
- Jahr
- 2024
- Team
- Daniel Rögner, Elias Holzer, Tobias Fink
- Wettbewerb
- VDI Wettbewerb 2024/25
- Platzierung
- SONDERPREIS