Lichtblick
Haus über Haus | 2024
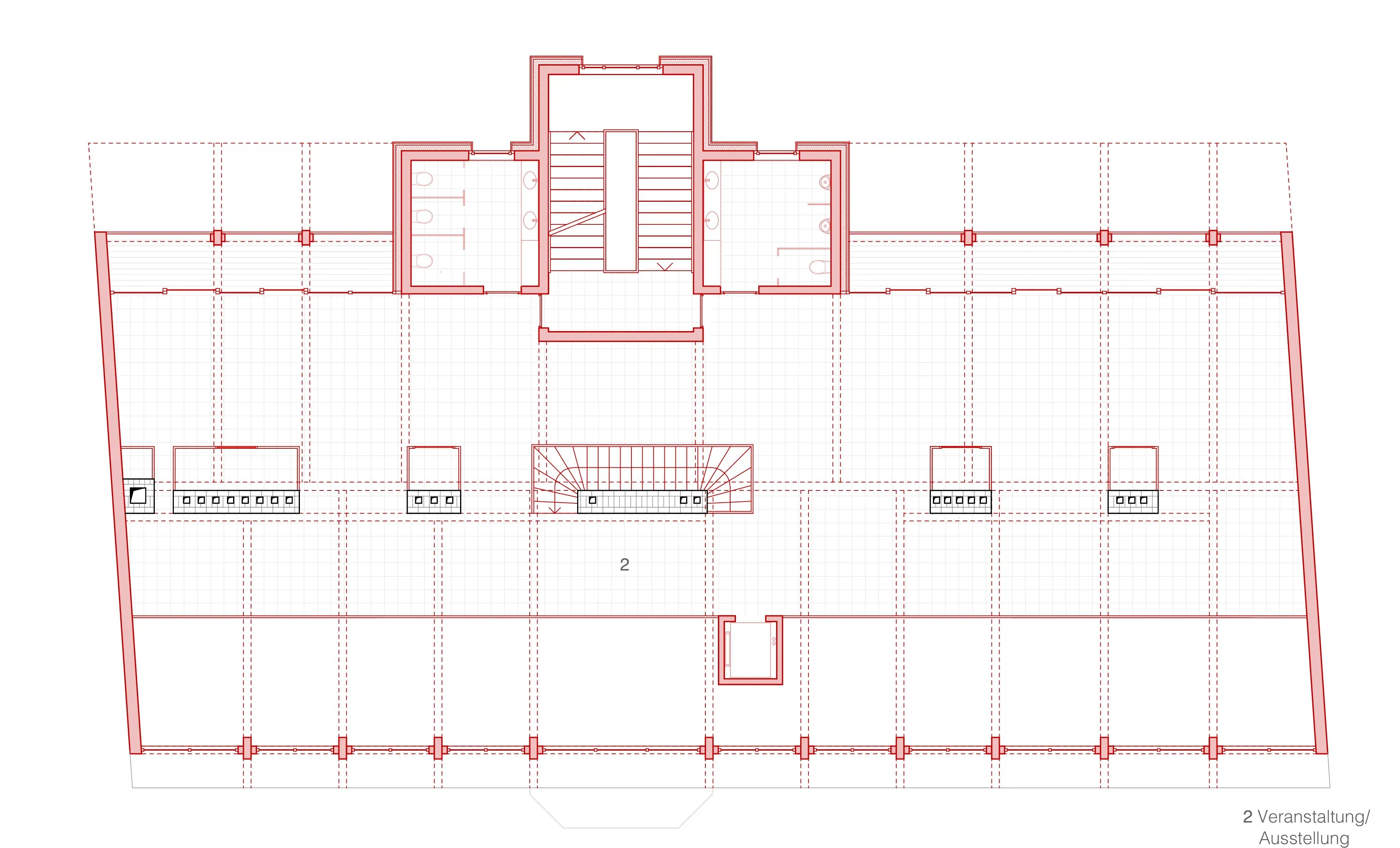
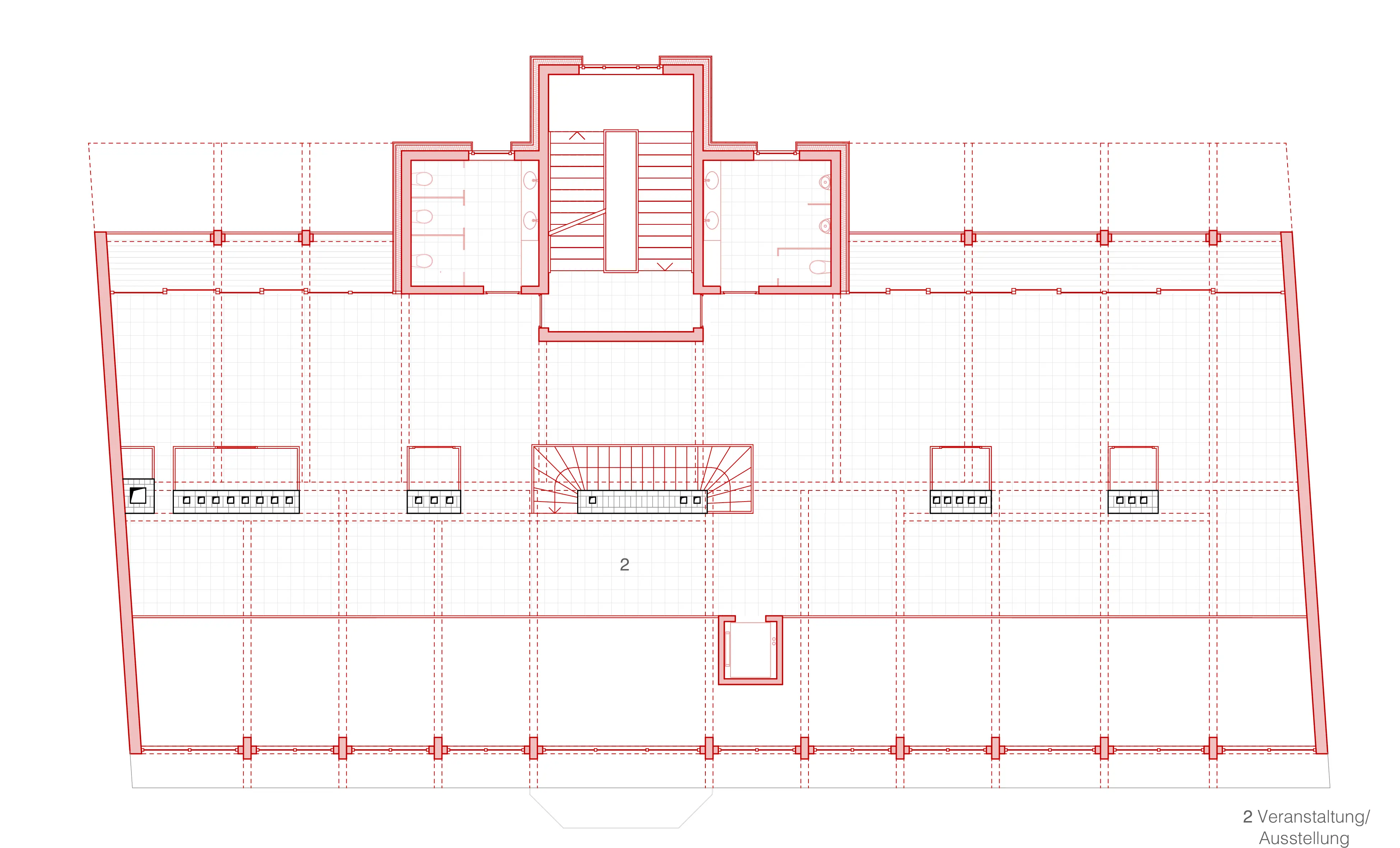
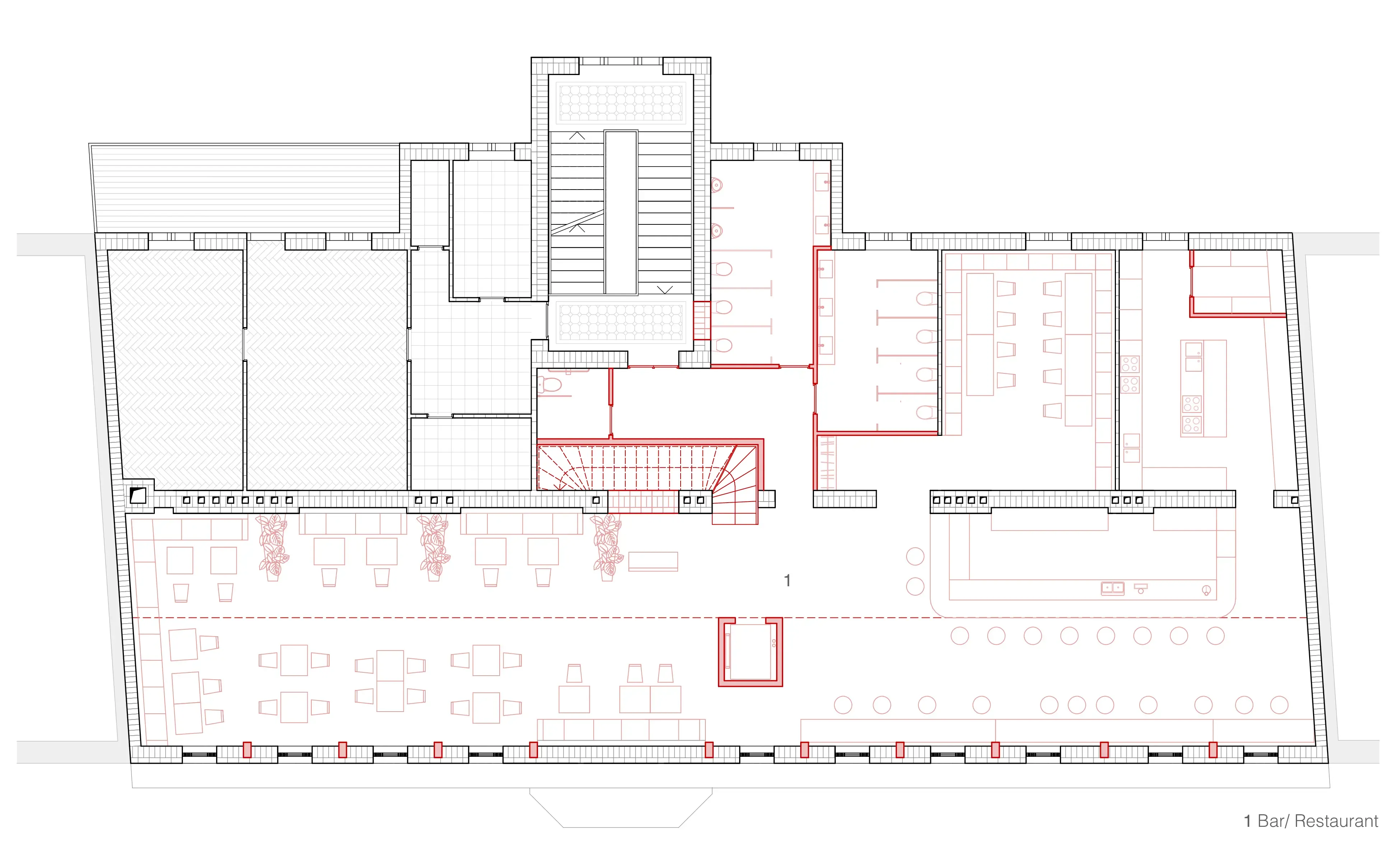
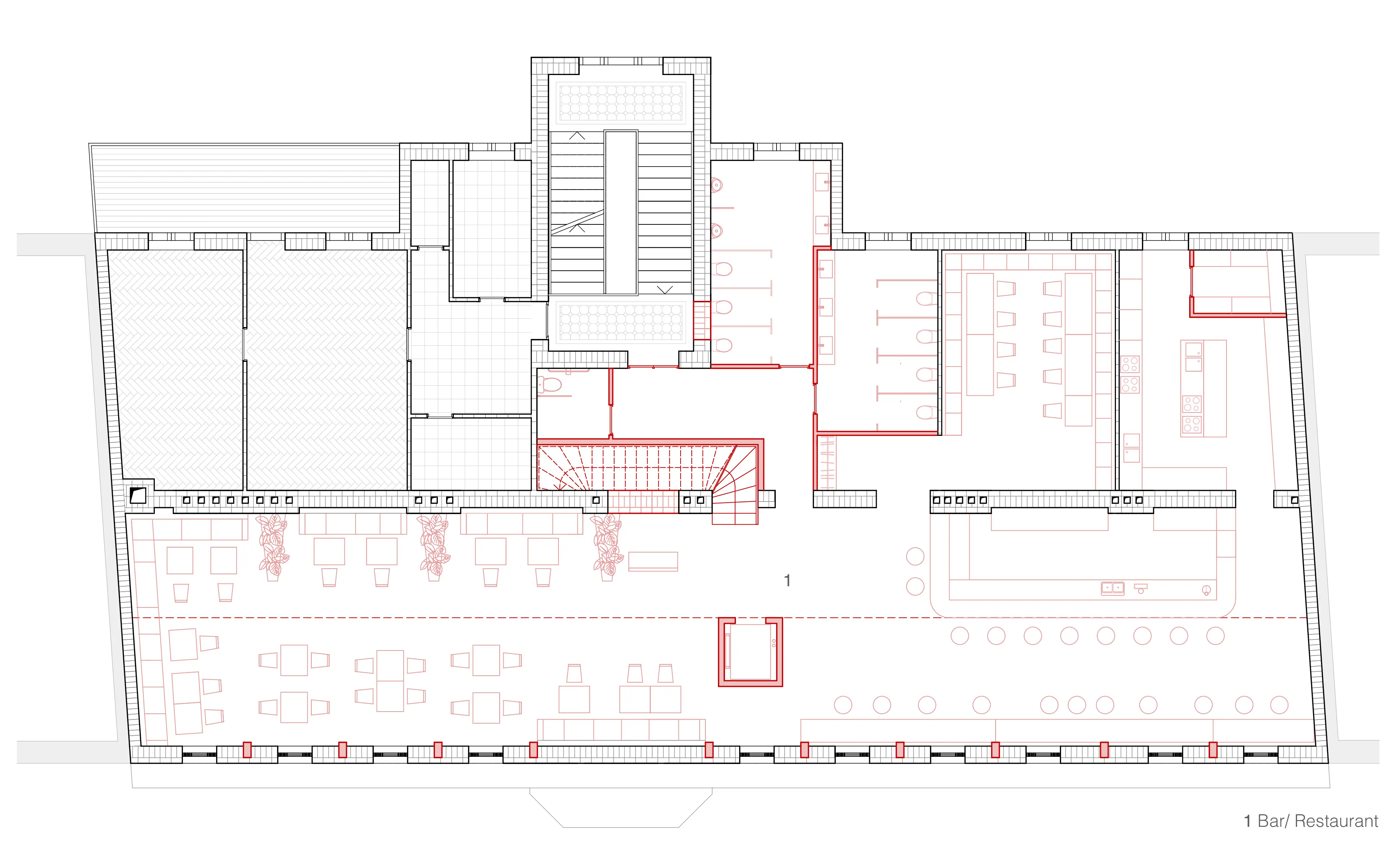
Die Ausgangslage war ein zweistöckiges Gründerzeitgebäude, das aufgestockt werden soll. Ziel ist es, das historische Bauwerk harmonisch zu erweitern und moderne, multifunktionale Räume zu schaffen. Unter einem großzügigen Dach entstehen ein Restaurant/Bar, Ateliers sowie eine Veranstaltungs-/Ausstellungsfläche, die das Gebäude lebendig ergänzen und in Einklang mit der bestehenden Architektur stehen.
Projektdetails
- Entwerfen
- Hochbau 1 | Bachelor Entwerfen
- Betreuer
- Thomas Sommerauer
- Ort
- Bacherplatz, Wien
- Jahr
- 2024
- Team
- Tobias Fink