Isolation
Hochbau | 2022
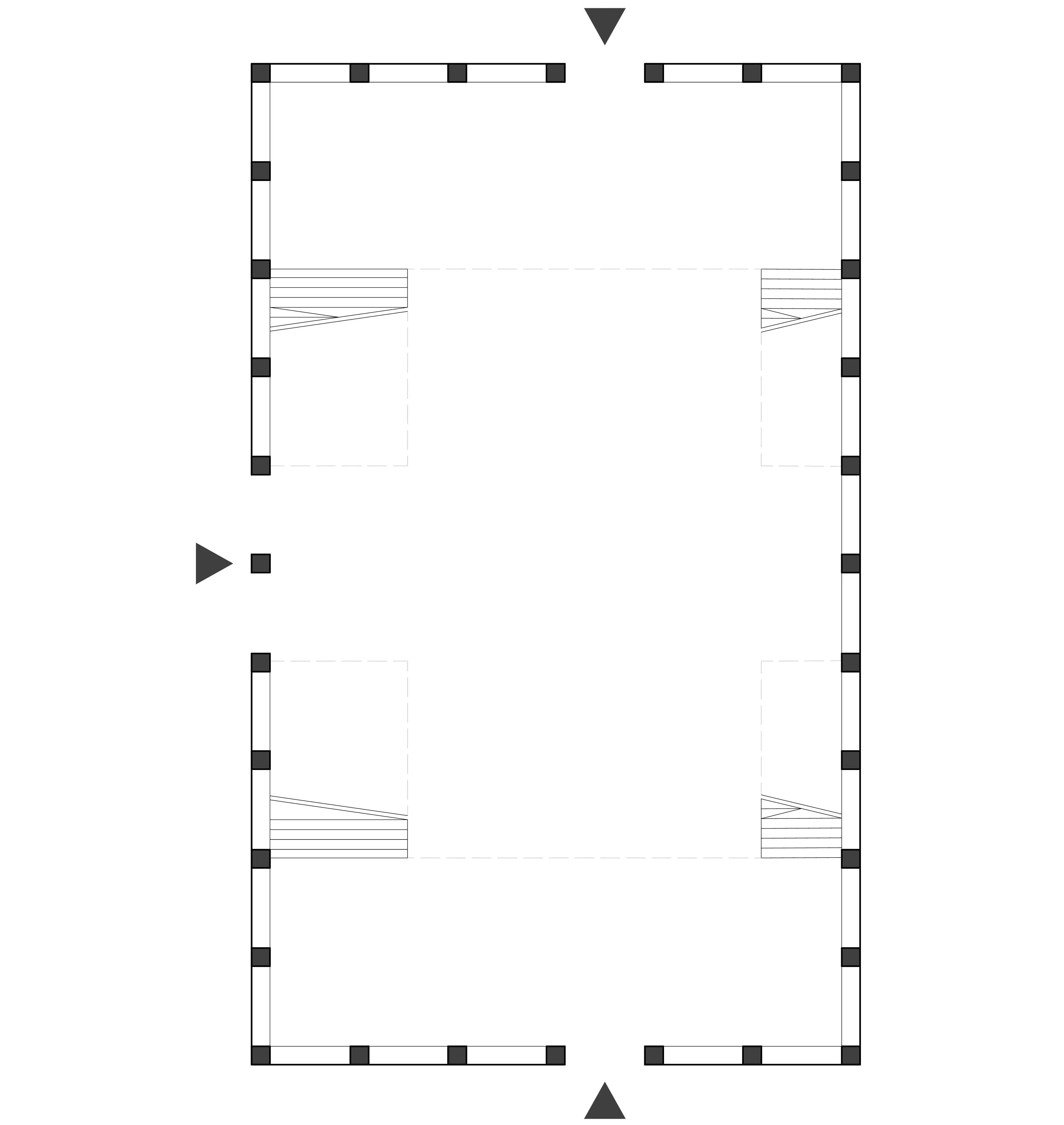
Inspiriert von den im vorhinein analysierten zentralen Elementen des Chicago Buildings – Isolation, Erschließung, Tragwerk und Licht – entstand im Kontext der COVID-19-Pandemie ein innovatives Ausstellungsraumkonzept. Das Projekt setzt auf ein Haus-in-Haus Prinzip, bei dem ein Innenhaus an filigranen Fachwerken abgehängt ist. Dieser offene Raum schafft eine Balance zwischen Schutz und Offenheit, die gerade in Zeiten von Corona relevant ist. Die hängende Struktur sorgt für großzügige Lichtdurchflutung und Leichtigkeit, während das Innenhaus als sicherer Rückzugsort dient. So verbindet das Konzept architektonische Tradition mit einer modernen, flexiblen Antwort auf aktuelle Herausforderungen.
Projektdetails
- Entwerfen
- Hochbau 1
- Betreuer
- Peter Thalbauer
- Ort
- Fiktiv
- Jahr
- 2022
- Team
- Tobias Fink